Fusi & Ammann Architekten
Aktuell
Bilder
Projekte
Büro
Team
Auszeichnungen
Publikationen
Ausstellungen
Kontakt
Impressum
Link HCU
1
2
3
4
5
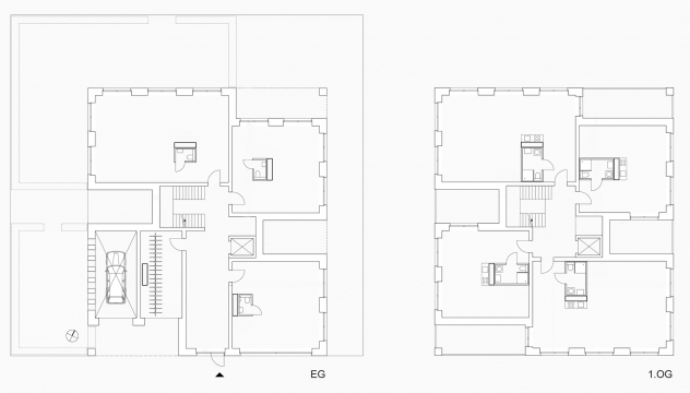
Neckarbogen Heilbronn
Investorenauswahlverfahren
Investor: Hofkammer des Hauses Württemberg
Auslober: Stadt Heilbronn
BGF: 2.700 m²
Heilbronn 2015
zurück