1 2 3 4 5 6 7
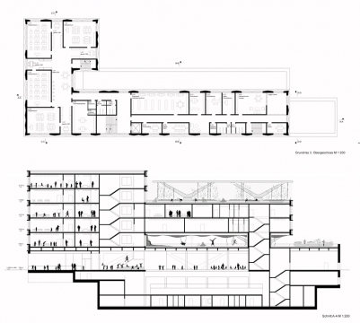
Schule Baakenhafen Hamburg
Nichtoffener Realisierungswettbewerb mit Bewerbungsverfahren
Hamburg 2016
zurück